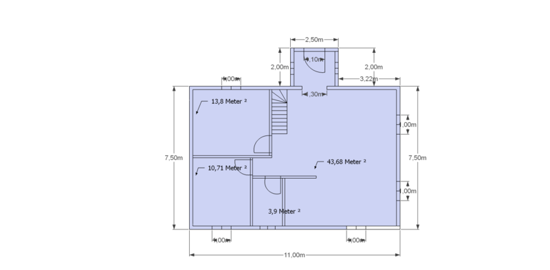
Grundrisse von Kundenhäuser 

Hier finden Sie Grundrisse von Kundenhäuser .

Sie können uns auch einen Grundriss nach Ihren Vorstellungen zukommen lassen . 

Wir unterbreiten Ihnen dafür gerne ein Angebot .

Buhles  Bausätze für Holzhäuser
St.-Wendeler-Str. 39
66892 Bruchmühlbach-Miesau

Telefon:   06372 - 6964

Fax:        06372 - 61440

Handy:    0175 24 80 414

 

                      E-Mail   

 

              rabu62@googlemail.com

 

                      

 

            

  

 

    

Aktuelles